c Commercial

3418 Gravois Unit A

REQUEST A TOUR

PROPERTY DESCRIPTION

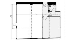
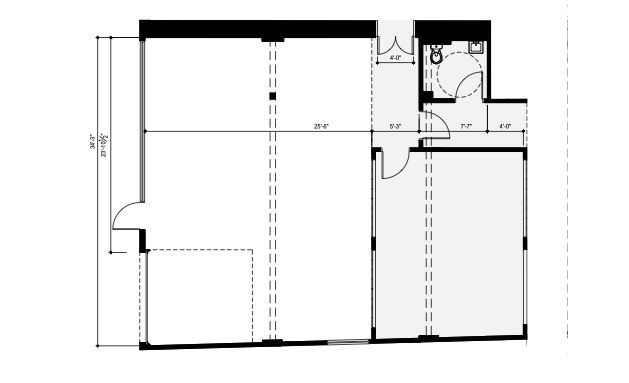
Those setting foot inside 3418 Gravois in decades gone by may have been seeking out an expert mechanic to work on their vehicle, or were in search of a classic Ford Sedan model of the times to add to their collection. While mainly serving as an auto body repair or sale shop, the space also moonlighted at times as home to a barber, a baker (no candlestick makers that we know of), or printing office team. Now the freshly renovated commercial space is ready to welcome its next occupant with the 3,000-square-foot industrial space cleanly broken into two leasable sections.

Unit A, the front and slightly glitzier section, comes with a new commercial manual pull-up garage door entry off of Gravois, as well as a standard entry door. A single bathroom is shared with just one other tenant and accessed off a small common area that divides the two halves. Tenants have their own dedicated smart thermostat to adjust temperatures to their comfort level. There is a separated middle section within the space that could serve as an office, conference room, workshop hosting space, etc.!

As Unit A faces the street, it could be a forward-facing retail space, though the garage door and huge industrial style windows make it a perfect spot for a creative workspace or workshop.

Price is $2,000/month for rent plus $115/month for water/sewer. Tenant is responsible for trash and electric charges. Internet service is available for additional $75/month. Security deposit is equal to one month’s rent subject to credit and application approval. The advertised rental rate reflects a $75/mo discount for paying rent via ACH / wire transfer on the first of the month.

Amenities

  •   Concrete Floors
  •   Exposed Brick
  •   Central Air Conditioning
  •   Forced Air Heat
  •   All Electric Unit
  •   Commercial Garage Door
  •   Restroom Facilities